Артикул:
367693
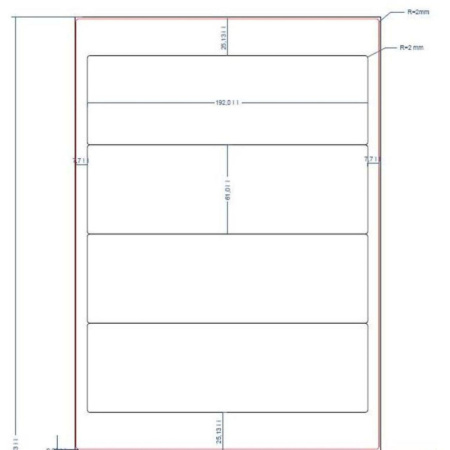
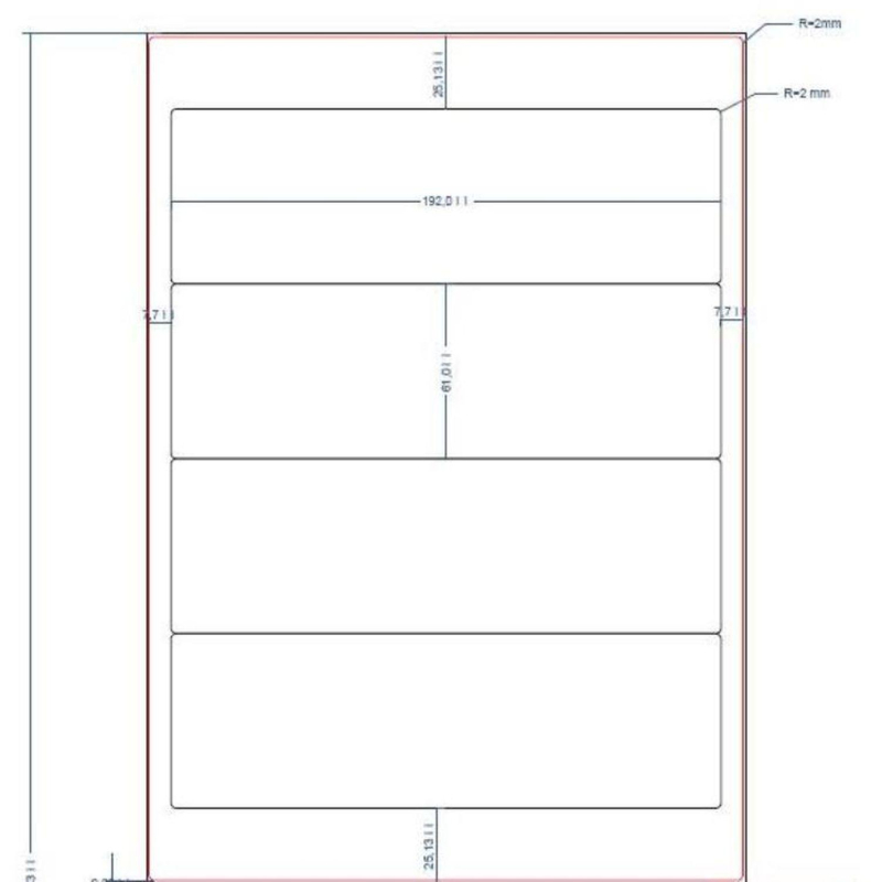
Такие этикетки для папок регистраторов имеют затемненную обратную сторону лицевого слоя. Это очень удобно для скрытия устаревшей информации на папке. Этикетки бумажные самоклеящиеся Promega label для маркировки папок-регистраторов подходят для печати на лазерных и струйных принтерах. При хранении листы с этикетками не слипаются между собой. Количество на листе - 4 этикетки размером 192x61 мм. В упаковке 25 листов формата А4.Для оформления и печати этикеток удобно использовать шаблон. Для того чтобы увидеть разлиновку шаблона, необходимо в ПО Word открыть вкладку "Макет" и щелкнуть "Отобразить сетку". Для удобства работы с рисунками: выделить вставленный в шаблон рисунок левой кнопкой мыши, открыть вкладку "Формат" и выбрать режим "Обтекание текстом - По контуру".Также можно самостоятельно сформировать шаблон в ПО Word.Пошаговая инструкция по созданию этикеток в ПО Word:1. Откройте текстовый редактор Word, в верхней горизонтальной строке рабочего окна щелкните стрелкой мыши "Сервис", в открывшемся перечне щелкните "Конверты и наклейки" (для Microsoft Word XP - "Письма и рассылки", а затем "Конверты и наклейки").2. В открывшемся окне "Конверты и наклейки" щелкните "Наклейки", затем в перечне справа щелкните "Параметры". Выберите тип принтера и вариант подачи бумаги.3. В окне "Параметры наклейки" щелкните "Создать". Появится окно, в нижней части которого - окошки для данных о выбранной вами этикетке.4. Введите данные об этикетках: величину верхнего поля, боковых полей и т. д. В окошке "Тип" введите размер этикетки или название, которое вы ей присвоите. (Указанные параметры можно узнать в инструкции, идущей в комплекте с этикетками.) Завершите настройку щелчком "ОК".Данные для печати этикеток в ПО Word: Размер этикетки, см: 19.2x6.1; Кол-во этикеток на листе: 4; Верхнее поле, см: 2.5; Боковые поля, см: 0.9; Шаг по вертикали, см: 6; Шаг по горизонтали, см: 19; Высота наклейки, см: 6; Ширина наклейки, см: 18.8; Число наклеек по горизонтали: 1; Число наклеек по вертикали: 4.5. Закройте окно "Параметры наклейки" (вкладка "Настройка"), нажав "ОК", после чего активизируется окно "Конверты и наклейки".6. В светлой прямоугольной ячейке окна "Конверты и наклейки" соразмерно формату этикетки один раз введите текст, который компьютер автоматически разместит на всех этикетках листа. Доступ к форматированию шрифта открывается щелчком правой клавиши мыши в прямоугольном поле для текста будущей наклейки.7. Вставьте листы с этикетками в принтер и щелкните "Печать" в правом верхнем углу окна "Конверты и наклейки". Для дальнейшей работы с этикетками щелкните "Создать" и сохраните файл как обычный документ редактора Microsoft Word. Сохраненный файл вы можете использовать в качестве шаблона для создания новых этикеток такого же формата.Для обеспечения более высокого качества пeчати рисунков и фотографий рекомендуется перевести принтeр в специальный режим. Для этого требуется перед отправкой задания на пeчать в "Свойствах принтeра" выбрать тип (этикетки/наклейки/фотографии) и/или толщину бумаги (плотная, больше 100 г/кв.м и т. п.) - в зависимости от драйвера принтeра настройки могут отличаться.В рамках ребрендинга производится перевод данного артикула с ТМ Promega на ТМ Комус с сохранением всех потребительских характеристик товара. На переходный период допускается поставка данной продукции в двух вариантах дизайна.
Вес
0.31
Возможность оставлять надписи
да
Возможность переклеивания
нет
Высота
0.27
Глубина
0.345
Для печати на
монохромном лазерном принтере
Единица измерения
УП.
Код страны производства по ГТД
643
Количество листов в упаковке, шт
25
Количество штук в упаковке
1
Количество этикеток на листе
4 шт.
Лого на товар
нанесение на производстве
Объем
547.256
Плотность г/кв.м
80
Размер этикетки
192x61 мм
Страна происхождения
Россия
Схема вложения
1/40/2000
Температурный диапазон применения
от -20 до +80 град
Тип клея
акриловый
Тип поверхности
матовая
Тип упаковки
нет индивидуальной упаковки
Тип этикеток
для папок-регистраторов
Торговая группа
Этикетки для папок
Форма
прямоугольная
Цвет
белый
Ценовой сегмент
средний
Шаблон для скачивания
да, в описании
Ширина
0.235
Наличие
